Description
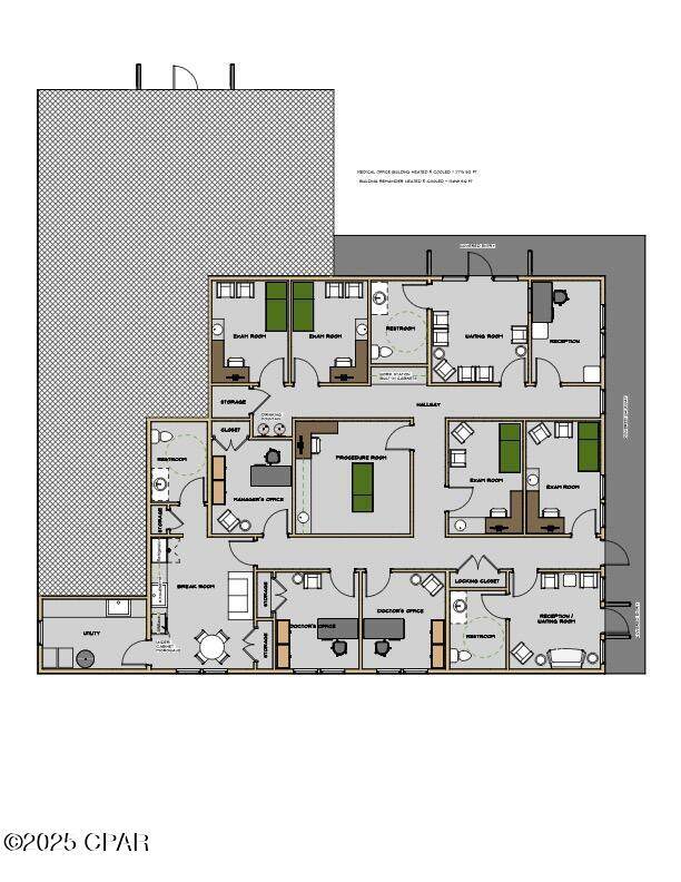
Office Space for Lease - Build-to-Suit Opportunity Now pre-leasing professional office space in a prime Panama City Beach location. Situated directly behind Back Beach Car Wash on Panama City Beach Parkway (Hwy 98), this property offers excellent visibility and easy access along one of the area's busiest commercial corridors. This office building will be fully customizable to meet the tenant's needs. The landlord is offering build-to-suit options, providing flexibility to design a space that fits your operations perfectlyideal for professional services such as healthcare specialists, legal, financial, or general office use. The property offers the advantages of new construction, high visibility, ample parking, and a convenient location close to residential neighborhoods, retail, and dining. It is a rare opportunity to secure modern, customized office space in one of the fastest-growing areas of Panama City Beach. Contact us today to discuss your vision and reserve this space before it is gone.
-
0BEDS
-
N/AACRES
-
0BATHS
-
01/2 BATHS
-
1,500SQFT
-
$37$/SQFT
School Information
Description
Office Space for Lease - Build-to-Suit Opportunity Now pre-leasing professional office space in a prime Panama City Beach location. Situated directly behind Back Beach Car Wash on Panama City Beach Parkway (Hwy 98), this property offers excellent visibility and easy access along one of the area's busiest commercial corridors. This office building will be fully customizable to meet the tenant's needs. The landlord is offering build-to-suit options, providing flexibility to design a space that fits your operations perfectlyideal for professional services such as healthcare specialists, legal, financial, or general office use. The property offers the advantages of new construction, high visibility, ample parking, and a convenient location close to residential neighborhoods, retail, and dining. It is a rare opportunity to secure modern, customized office space in one of the fastest-growing areas of Panama City Beach. Contact us today to discuss your vision and reserve this space before it is gone.
© 2026 Central Panhandle Association of Realtors MLS. All rights reserved. IDX information is provided exclusively for consumers' personal, non-commercial use and may not be used for any purpose other than to identify prospective properties consumers may be interested in purchasing. Information is deemed reliable but is not guaranteed accurate by the MLS or Waves and Woods Realty. Data last updated: 2026-01-18T08:04:10.72.

Listing provided courtesy of Think Real Estate: 850-270-4200. Listing information © 2026 Central Panhandle Association of Realtors MLS.